Piso en venta en Calle Maldonado

3.920.000 
COMPRA
100% A ESTRENAR
  28006 Madrid
Características
Referencia inmueble: 7273
Precio de Venta: 3.920.000 
Superficie 287 m2
Operación: Venta
Año de construcción 1946
Repercusión m² venta 13.659
Dormitorios 4
Baños 5
Amueblado
Cocina Amueblada
Calefacción Central
Altura/Planta 2
Estado 100% a Estrenar
Tipo de suelo Madera
Ascensor
Aire acondicionado
Zonas comunes
Calificación Energética (G) VER
Luz
Agua
Conserje
Piso en venta en Calle Maldonado

HousinGo presenta este amplio y luminoso piso con terraza, ubicado en una finca clásica de 1946 con ascensor y portero físico. Situado a pocos pasos de la calle Príncipe de Vergara y la Calle Juan Bravo. Su ubicación estratégica combina el encanto de una zona histórica con una vibrante oferta de restaurantes, comercios y espacios culturales.


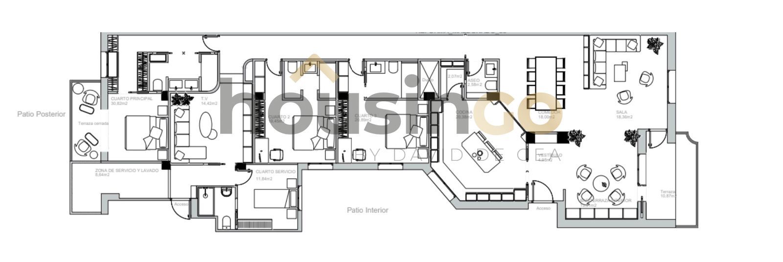
Este espectacular piso de 287 m², situado en una segunda planta, ha sido recientemente reformado, por lo que cuenta con acabados de lujo y materiales de primer nivel. Cuenta con un amplio y luminoso salón-comedor, con salida directa a la terraza. Dispone de cocina independiente. Tres espaciosas habitaciones dobles, todas con baño en suite, destacando la principal, que cuenta con terraza cerrada privada. Además, cuarto dormitorio de servicio con baño propio. La vivienda se completa con una segunda sala de estar, sala de lavandería y aseo de cortesía.


El piso se entrega completamente reformado y a estrenar, equipado con calefacción central y aire acondicionado por conductos para garantizar el máximo confort durante todo el año. 


El Barrio de Salamanca es el distrito más selecto de Madrid y uno de los enclaves con mayor calidad de vida en Europa. Concebido a mediados del siglo XIX, sus majestuosas fachadas y amplias avenidas mantienen la elegancia y distinción propias de su época. Este histórico barrio no solo te fascinará por su rica oferta comercial, cultural y de ocio, sino también por su prestigiosa gastronomía. En sus calles se encuentran algunas de las embajadas más relevantes, así como monumentos icónicos como la Plaza de Colón o la Puerta de Alcalá. Además, alberga el renombrado espacio gastronómico Platea y la exclusiva “Milla de Oro” en la calle Serrano, donde se concentran las firmas más prestigiosas a nivel mundial.


HousinGo, by David de Gea.


Somos una agencia inmobiliaria especializada en la venta y alquiler de viviendas en zonas prime de Madrid. 


En nuestra página web puedes acceder a los inmuebles que tenemos disponibles, además de nuevas oportunidades de inversión que se comercializan totalmente off-market y que gestionaremos para ti de manera personalizada. 


Si está interesado en alquilar, vender o comprar, puede contactarnos a través de nuestro teléfono fijo 910 053 963, enviarnos un WhatsApp a +34 722 54 49 50, o visitarnos en nuestras oficinas. Disponemos de un servicio de Call Center 24 horas al día, 365 días al año, para poder atenderles de manera ininterrumpida.

¿Necesita más información sobre este inmueble?
Si desea más información sobre esta propiedad o quiere reservar una visita, por favor, rellene el formulario:
 Sí, he leído y/o acepto las Condiciones de uso y la Política de privacidad
HousinGo
info@housingo.es    910 053 963 - 722 544 950
Calle Ayala 62, Madrid    Calle Serrano 81, Madrid
Calle Velázquez 117, Madrid    Calle Luchana 26, Madrid